Zoom Estate Agents are delighted to offer to let this well presented three bedroom end of terrace townhouse located within the heart of Handcross Village in a gated development. The property is also located with close proximity to local schools and amenities. Available Now / Unfurnished
Zoom Estate Agents are delighted to offer for sale this well presented three bedroom end of terrace townhouse located within the heart of Handcross Village which provides local amenities and easy access to the A23 which provides access to London, Gatwick Airport and the South Coast. Positioned within a small gated development the property in brief comprises on the ground floor of an entrance hall, downstairs WC and Kitchen/Living room. On the first floor are two bedrooms and a family bathroom. On the second floor is the Master bedroom which boasts an En Suite. Outside the property is a good sized rear garden and an allocated parking space. Further benefits include double glazed windows and under floor heating throughout the property.
Offered to the market with no onward chain an internal viewing comes highly recommended to appreciate this home in full.
Front Door
Opening to;
Entrance Hall
Stairs to first floor, under stairs cupboard, radiator, window to front, doors to;
WC
Low flush WC, wash hand basin.
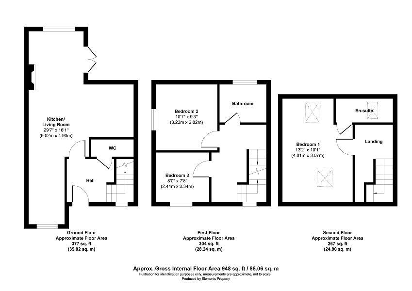
Kitchen/Living Room (29' 07" x 16' 01" or 9.02m x 4.90m)
Base and eye level units comprising an inset sink with mixer tap, oven with hob and extractor hood over, integrated fridge/freezer, integrated washing machine, integrated dishwasher, windows to front and rear, door to rear access.
First Floor Landing
Stairs to 2nd floor, window, leading to;
Bedroom 2 (10' 07" x 9' 03" or 3.23m x 2.82m)
Window.
Bedroom 3 (8' 00" x 7' 08" or 2.44m x 2.34m)
Window.
Bathroom
Comprising an enclosed bath tub, low flush WC, wash hand basin, heated towel rail, part tiled walls.
Second Floor Landing
Door to;
Bedroom 1 (13' 02" x 10' 01" or 4.01m x 3.07m)
Velux windows, door to En Suite.
En Suite
Comprising an enclosed bath tub, low flush WC, wash hand basin, part tiled walls, velux window.
Rear Garden
Fully enclosed on a corner plot, gated side access.
Allocated Parking
Service Charge
There is an annual estate charge of £350
Service Charge : £350
If you have any queries in regards to the property market or you’ve seen a property which you are interested in please feel free to contact us.

